%

P478

Fernando de Noronha, Pernambuco , Brasil

Fernando de Noronha is a true ecological sanctuary. Both on land and in its waters, the archipelago's stunning biodiversity justifies the care taken by the Brazilian state to protect this site. The legislation aimed at safeguarding its ecosystems presents a huge challenge for architecture, requiring exceptional sensitivity and special attention throughout the construction process.
 
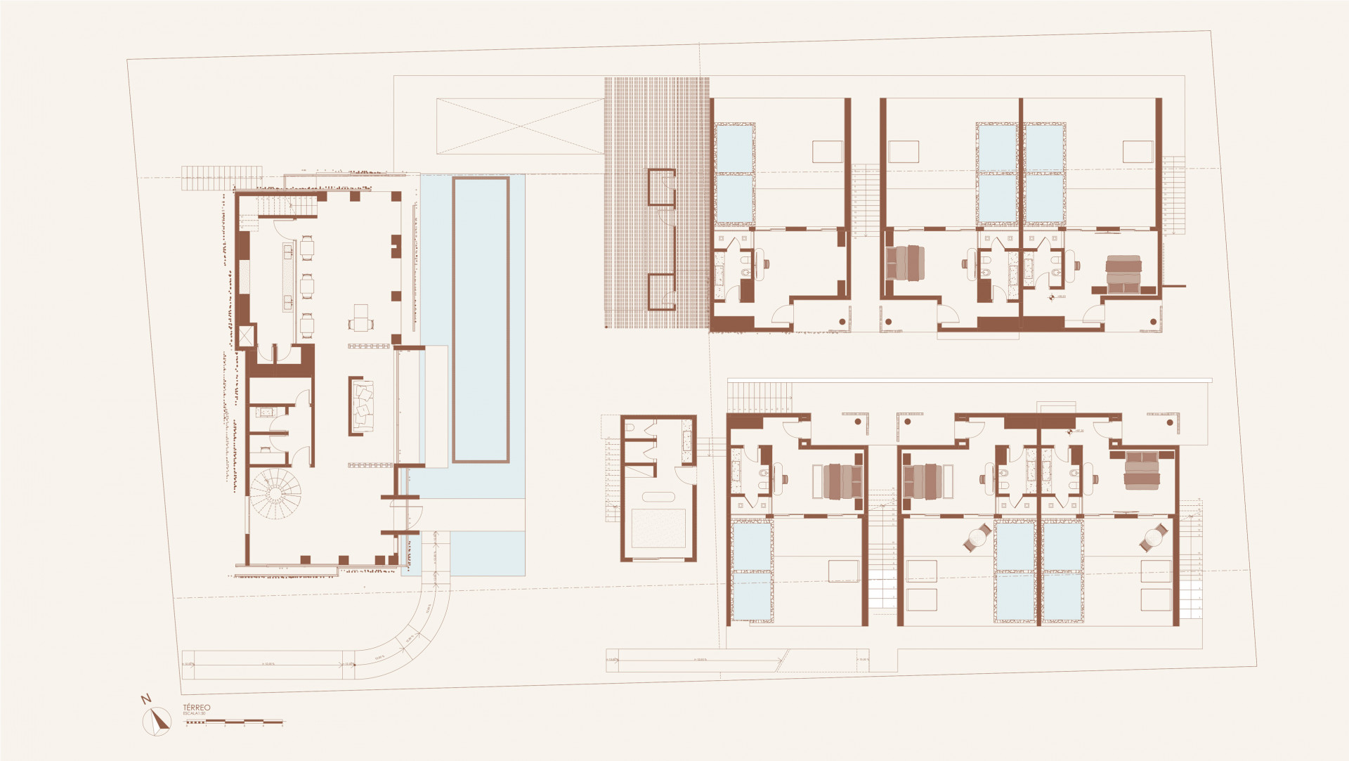
P478 is a boutique hotel composed of two programmatic blocks: the first is positioned transversely on the site, at the front of the lot, housing the lobby and restaurant, and oriented towards the interior of the lot, facing the pool that runs along its entire length. The second block houses the suites and consists of two parallel buildings with two floors, arranged longitudinally. On the ground floor, each apartment has its own private outdoor area, sheltered by the building’s volume, while on the upper floor, the units feature a private pool.

Technical info

  • Local
    Fernando de Noronha, Pernambuco, Brasil
  • Area
    1000m2
  • Renders

    AARQ

This website uses cookies to provide necessary website functionality, improve your experience and analyze our traffic. By using our website, you agree to our Privacy Policy and use of cookies.